RENDER BY LL
CABIN JOHN
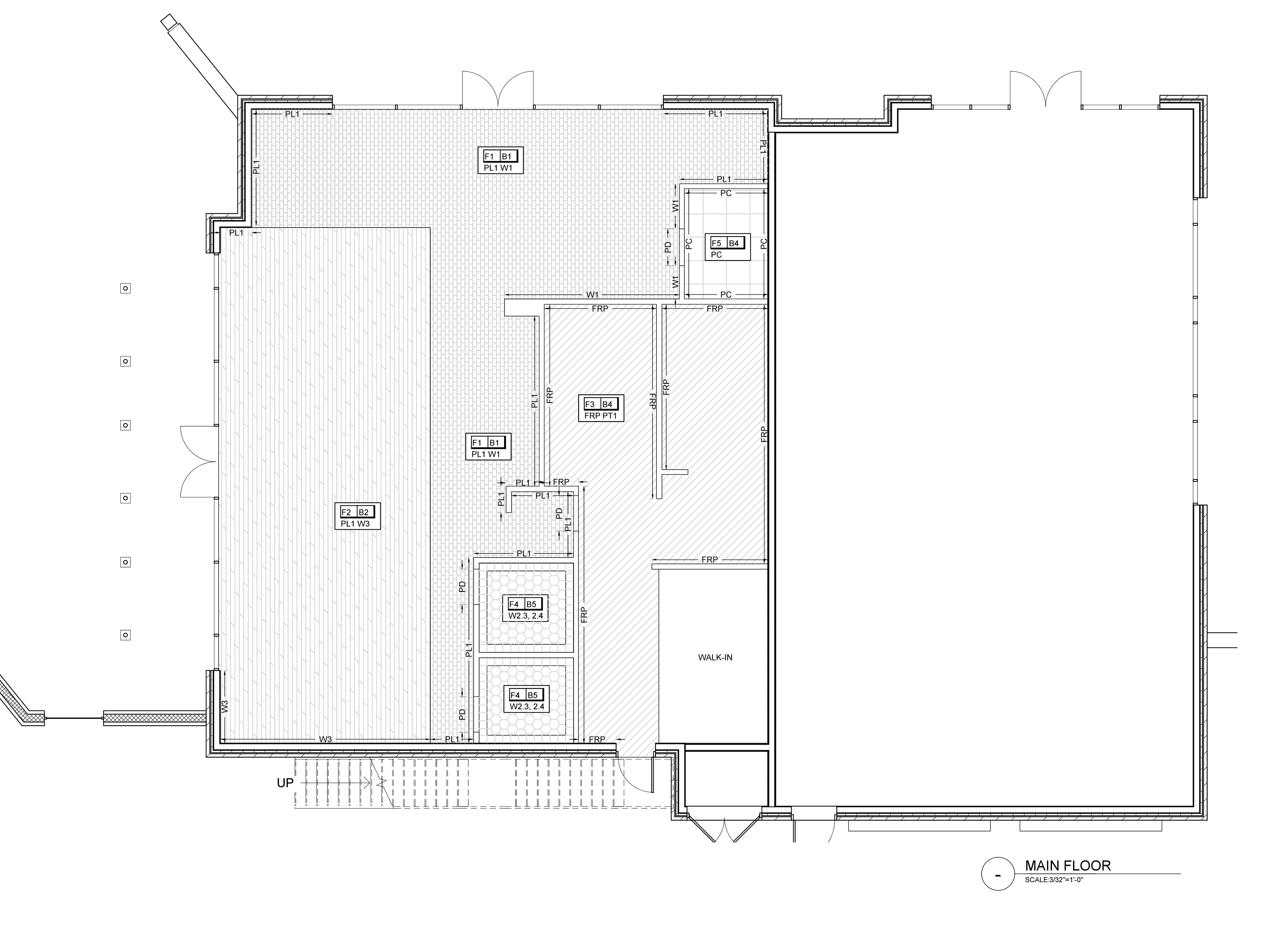
Location: Potomac, MD Year: Projected Completion 2018 Client: Le Pain Quotidien Status: Construction Position: Assistant Designer
Location: Potomac, MD Year: Projected Completion 2018 Client: Le Pain Quotidien Status: Construction Position: Assistant Designer